Unsere Designs sind Eigentum der IsoteQ® GROUP und urheberrechtlich geschützt. Kein Teil dieses Inhalts darf ohne vorherige schriftliche Genehmigung der IsoteQ® GROUP in irgendeiner Form oder auf irgendeine Weise reproduziert, verbreitet, reproduziert, gedruckt, in einem Datenabrufsystem gespeichert oder übertragen werden.
IQ209
Richtpreis. Unser Angebot gilt nicht als Angebotsposition. Kontaktieren Sie uns für weitere Details.
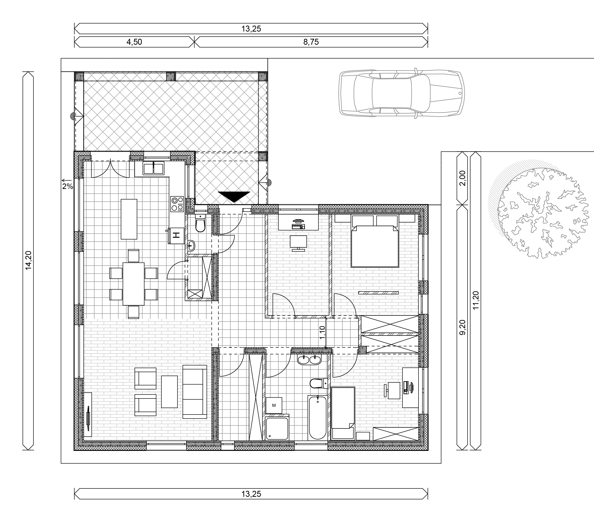
Das Gebäude ist für freistehendes oder grundstücksgrenzendes Stehen geeignet, empfohlen für Familien mit einem Kind.
Gesamtfläche (brutto): 121.26 m
Zusätzliche Informationen
| Anzahl der Etagen | |
|---|---|
| Gestalten | |
| Gesamtgröße (brutto m2) |
Zusätzliche Informationen
| Anzahl der Etagen | |
|---|---|
| Gestalten | |
| Gesamtgröße (brutto m2) |












