Skip to main content
Nachrichten

Unsere neuen Musterpläne – IQ267-268-269

By 07/03/2023No Comments

IQ267

Gesamtfläche (brutto): 220.18 m²
Erdgeschoss Bruttofläche:110,09 m²
Carport: 43,30 m²
Obergeschoss Bruttofläche: 110,09 m²

Schauen Sie sich unser neues Musterplan IQ267 an.

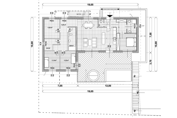
IQ268

Gesamtfläche (brutto): 301.73  m²
Erdgeschoss Bruttofläche: 160,74 m²
Obergeschoss Bruttofläche: 140,99 m²

Schauen Sie sich unser neues Musterplan IQ268 an.

IQ269

Gesamtfläche (brutto): 129.63 m²

Schauen Sie sich unser neues Musterplan IQ269 an.