Skip to main content
Nachrichten

Unsere neuen Musterpläne – IQ273-274-275

By 30/03/2023No Comments

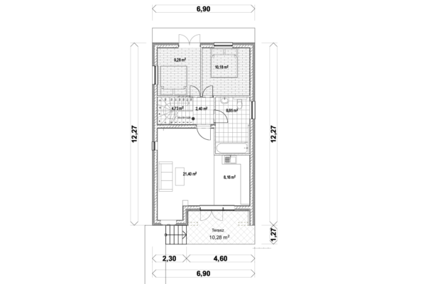
IQ273

Ideal für Familien mit 2 Kindern, ist es ein zweistöckiges Familienhaus.

Gesamtfläche (brutto): 169.32 m²
Erdgeschoss Bruttofläche: 84,66 m²
Terrasse: 10,28 m²
Obergeschoss Bruttofläche: 84,66 m²
Balkon: 4,10 + 3,62 m²

Schauen Sie sich unser neues Musterplan IQ273 an.

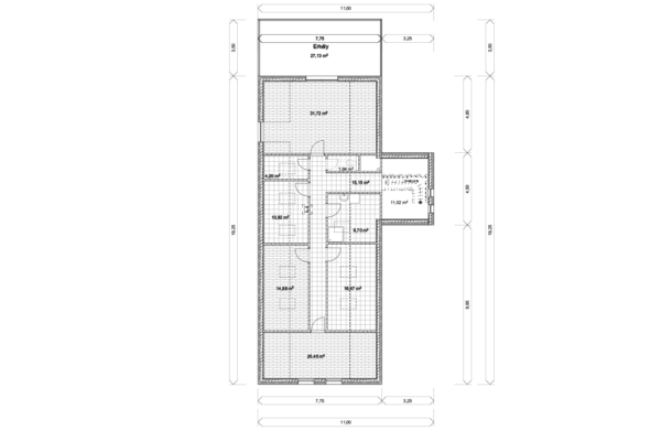
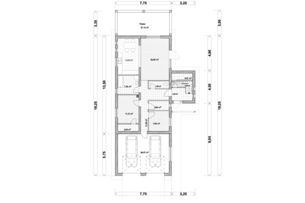
IQ274

Empfohlen für Familien mit 3 Kindern.

Gesamtfläche (brutto): 327.62 m²
Erdgeschoss Bruttofläche: 163,81 m²
Terrasse: 27,13 m²
Garage: 44,56 m²
Obergeschoss Bruttofläche: 163,81 m²
Balkon: 27,13 m²

Schauen Sie sich unser neues Musterplan IQ274 an.

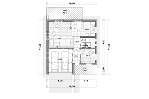
IQ275

Zweistöckiges Einfamilienhaus mit großen Terrassen, empfohlen für Familien mit zwei Kindern.

Gesamtfläche (brutto): 220.98 m²
Erdgeschoss Bruttofläche: 110,49 m²
Terrasse: 17,98 + 9,35 m²
Obergeschoss Bruttofläche: 110,49 m²
Balkon: 11,57 m²

Schauen Sie sich unser neues Musterplan IQ275 an.