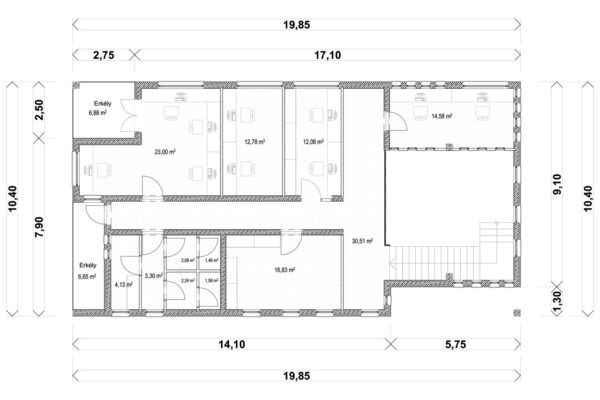
IQ276
Das Gebäude ist ein zweistöckiges Bürogebäude. Das Gebäude ist freistehend geeignet.
Gesamtfläche (brutto): 384.18 m²
Erdgeschoss Bruttofläche: 192,09 m²
Terrasse: 6,88 m²
Obergeschoss Bruttofläche: 192,09 m²
Balkon: 6,88 m
Schauen Sie sich unser neues Musterplan IQ276 an.
IQ277
Ideal für Familien mit 2 Kindern, ist es ein zweistöckiges Familienhaus.
Gesamtfläche (brutto): 179.76 m²
Erdgeschoss Bruttofläche: 89,88 m²
Terrasse: 21,27 + 14,04 m²
Obergeschoss Bruttofläche: 89,88 m²
Schauen Sie sich unser neues Musterplan IQ277 an.
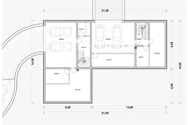
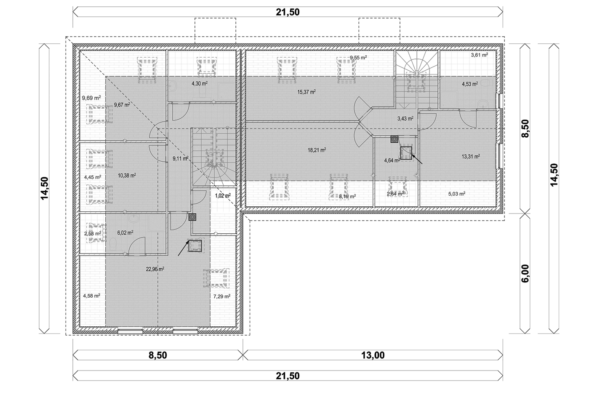
IQ278
Monumentale Doppelhaushälfte für kinderreiche Familien.
Gesamtfläche (brutto): 701.25 m²
Keller Bruttofläche: 233,75 m²
Erdgeschoss Bruttofläche: 233,75 m²
Terrasse: 43,50 + 26,25 m²
Obergeschoss Bruttofläche: 233,75 m²
Schauen Sie sich unser neues Musterplan IQ278 an.


