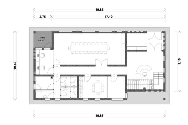
IQ279
Das Gebäude ist ein einstöckiges, modernes Bürogebäude mit mediterranem Dach.
Gesamtfläche (brutto): 192.09 m²
ErdgeschossBruttofläche:192,09 m²
Terrasse: 6,88 m²
Schauen Sie sich unser neues Musterplan IQ279 an.
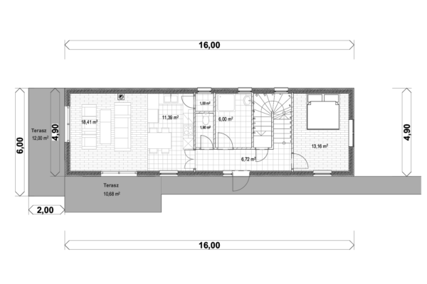
IQ280
Ideal für Familien mit 2 Kindern, ist es ein zweistöckiges Familienhaus.
Gesamtfläche (brutto): 156.8 m²
Erdgeschoss Bruttofläche: 78,40 m²
Terrasse: 12 + 10,68 m²
Obergeschoss Bruttofläche: 78,40 m²
Schauen Sie sich unser neues Musterplan IQ280 an.
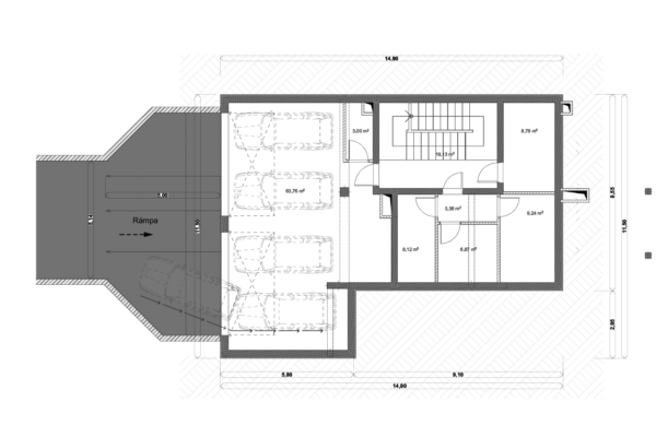
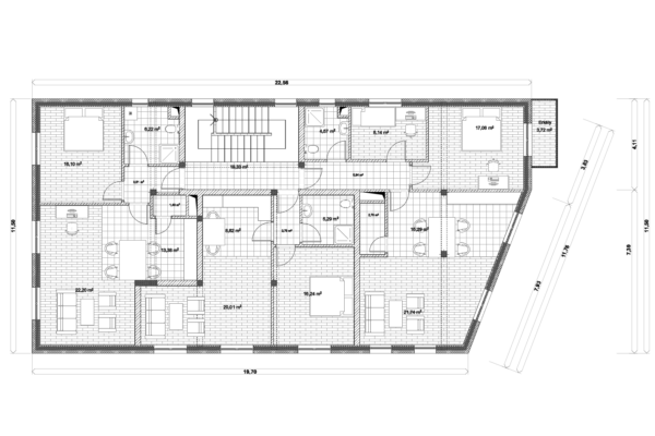
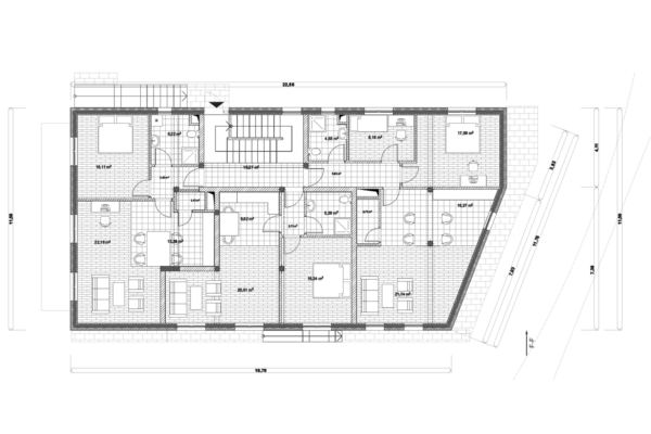
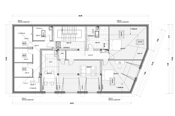
IQ281
Vierstöckiges, moderne Eigentumswohnung mit mediterranem Dach.
Gesamtfläche (brutto): 891.34 m²
Tiefgarage Bruttofläche: 144,79 m²
Erdgeschoss Bruttofläche: 248,85 m²
Obergeschoss Bruttofläche: 248,85 m²
Dachgeschoss Bruttofläche: 248,85 m²
Schauen Sie sich unser neues Musterplan IQ281 an.


